0
Skip to Content
Studio Mayd
Work
Arts-Learning-Working
Residential
Exhibiton-Installation
About
Academics
News
Open Menu
Close Menu
Studio Mayd
Work
Arts-Learning-Working
Residential
Exhibiton-Installation
About
Academics
News
Open Menu
Close Menu
Folder:
Work
Back
Arts-Learning-Working
Residential
Exhibiton-Installation
About
Academics
News
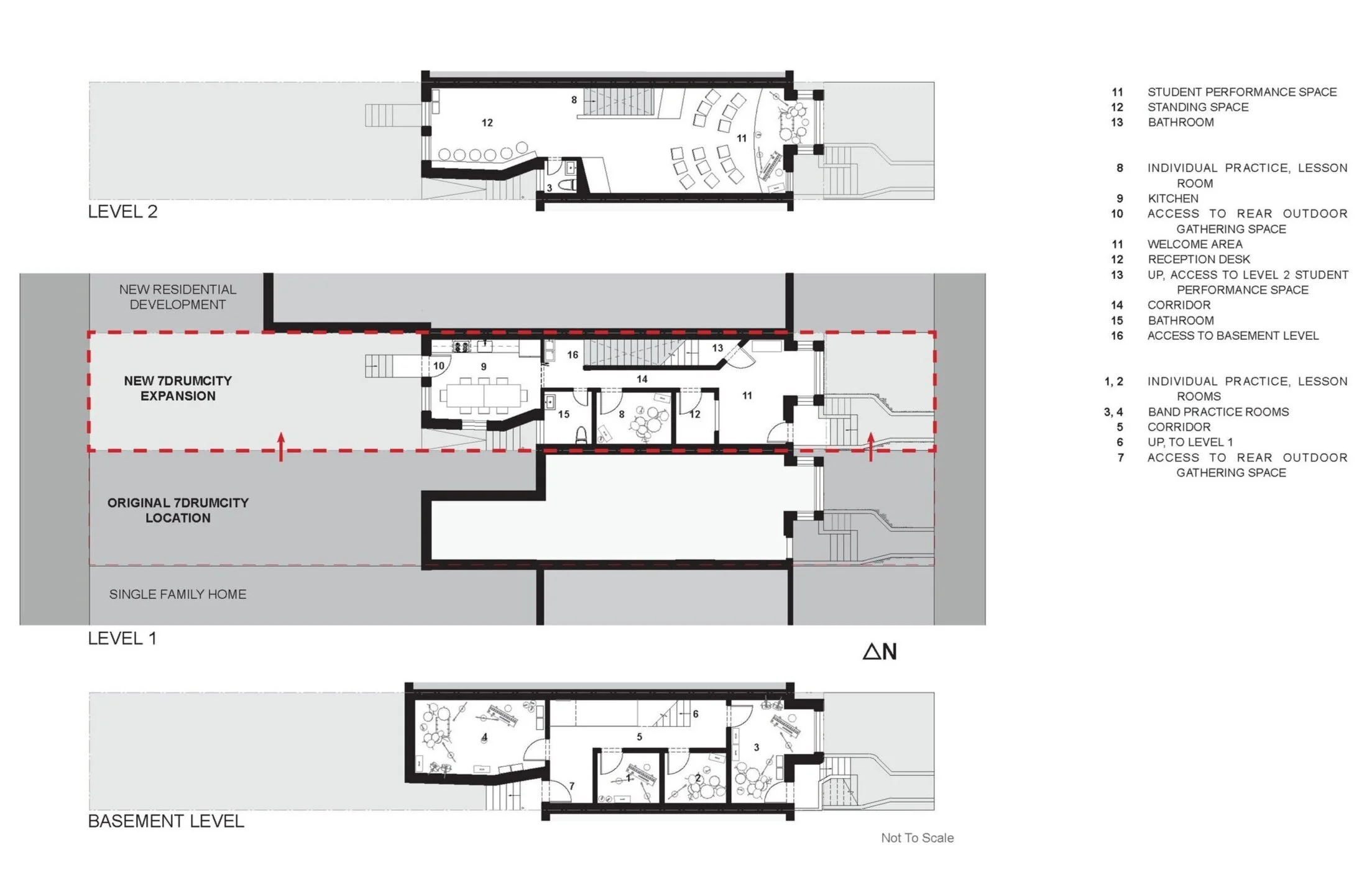
7DRUMCITY MUSIC BUILDING
North Capitol St. NW, Washington, DC
̌
ARTS, LEARNING & WORKING